Недвижимость Одесса

Улица

ул. 11й массив

Район

Киевский

Количество комнат

3 комнаты
89000 $

Заказать услугу дизайнера

ФОТО ОБЪЕКТА

Характеристики

  • Общая площадь 110 м²
  • Этаж 1 этаж
  • Этажность 2 этажа
  • Состояние Под ремонт
  • Тип посторойки Газобетон

Таунхаус Царское Село-2

Таунхаус расположен в Царском Селе
Введён в эксплуатацию.

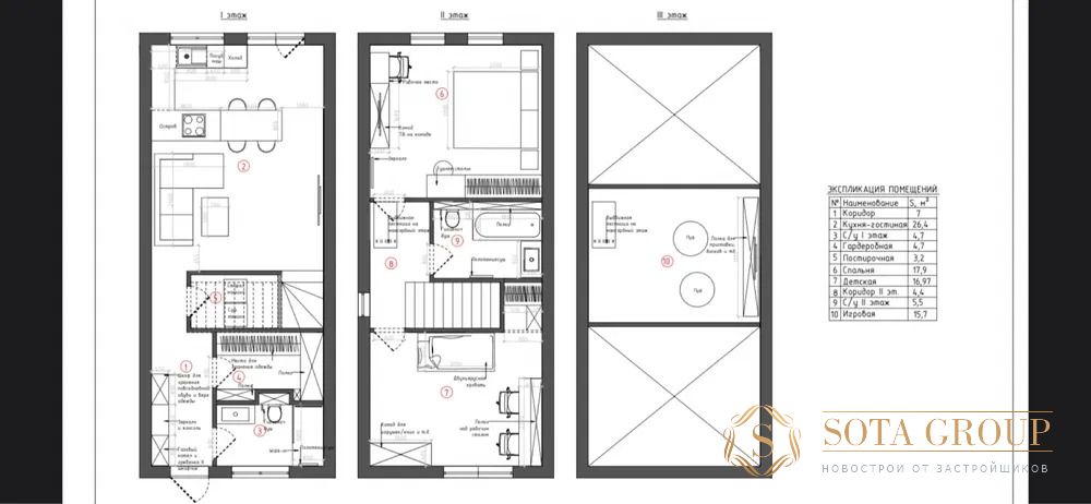
Площадь Таунхауса 110м2
Площадь участка 1,7 сотки

1-й этаж: кухня-гостиная, санузел, гардеробная, постирочная, коридор.
2-й этаж: две спальни, санузел.
3-й этаж: чердак (16 м.кв) или игровая детская комната.



Выполненные работы:
- разводка водоснабжения и канализации;
- разводка освещения и электроснабжения;
- тёплые полы на 6 контуров (1-й этаж);
- радиаторы отопления (2-й и 3-й этаж);
- шумоизоляция;
- утепление чердачного пространства;
- смонтированы все гипсокартонные конструкции;
- выполнена финишная шпаклёвка стен, потолков и откосов дверей и окон (под покраску со стеклохолстом);
- финишная стяжка полов;
- штукатурные работы в санузлах;
- установлены бронированные двери;
- установлены инсталляции и скрытые смесители;
- газовый котёл (технический проект согласован);
- передний двор выложен тротуарной плиткой;
- газ и электричество подключены, счётчики установлены.

-Два полноценных паркоместа.
-Задний дворик 60 м.кв. с отдельной скважиной.
-Улица перекрыта автоматическим шлагбаумом и облагорожена тротуарной плиткой.

Парк 411-й батареи в 5 мин ходьбы. До моря пешком 15-20 минут. Вся инфраструктура (рынок, Епицентр, Метро, строящийся торговый центр и т.п.) в двух минутах езды.

 

 

 

 

ID 93

Собственный
торговый центр

Месторасположение

  • 5 минут мин

    Морю
  • 10 минут мин

    Метро, Эпицентр , Оптовый рынок
  • 40 минут мин

    Центр Города

Инфраструктура

  • Школы, детские садики

  • Детские и спортивные площадки

  • Аптеки, медицинские магазины

  • Ресторан, бары, пабы

  • Торговые центры, бутики

  • Салоны красоты, Spa центры

У вас остались вопросы?

Свяжитесь с нами и мы ответим
на все Ваши вопросы
Заказать консультацию